04/10/2024

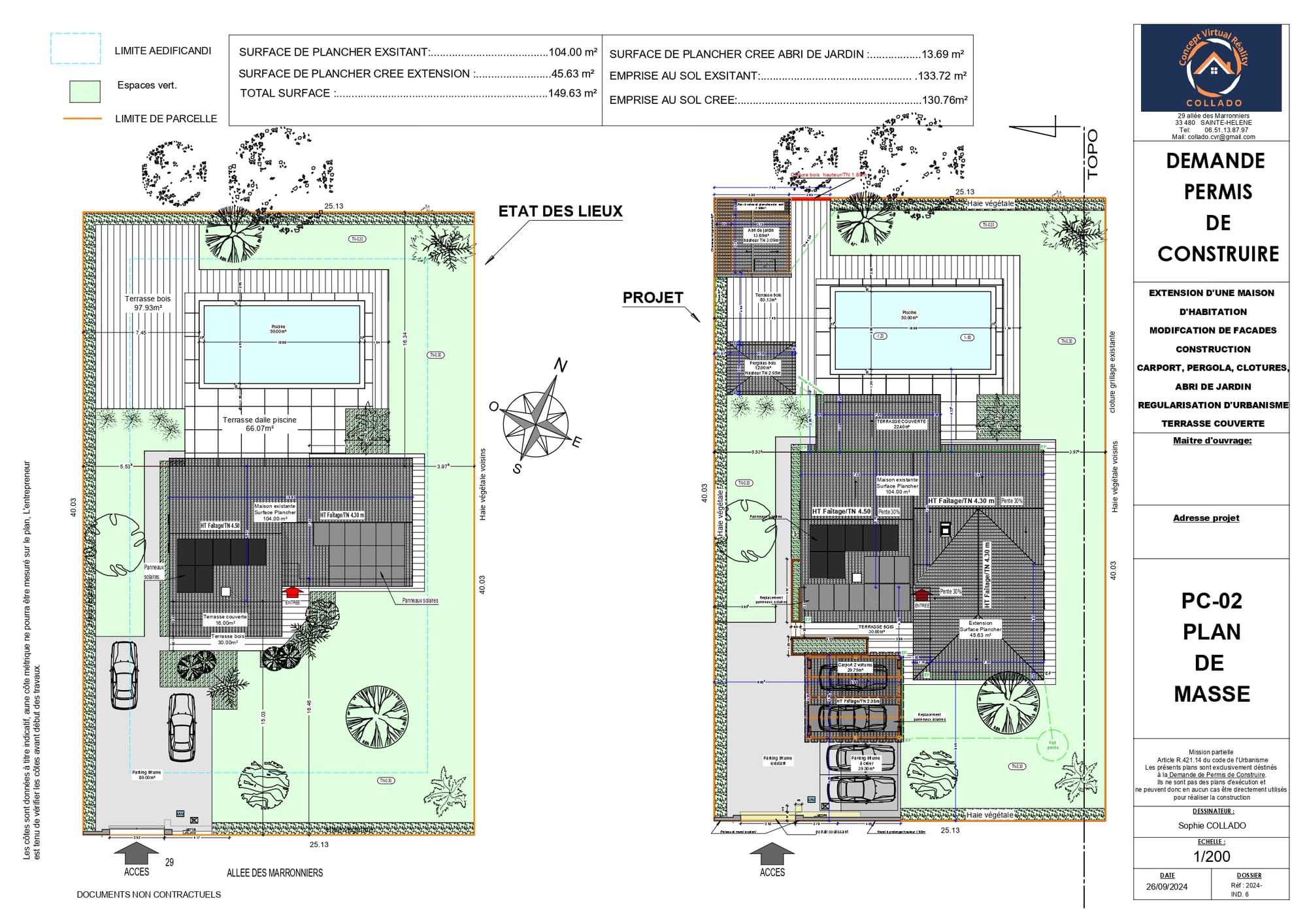
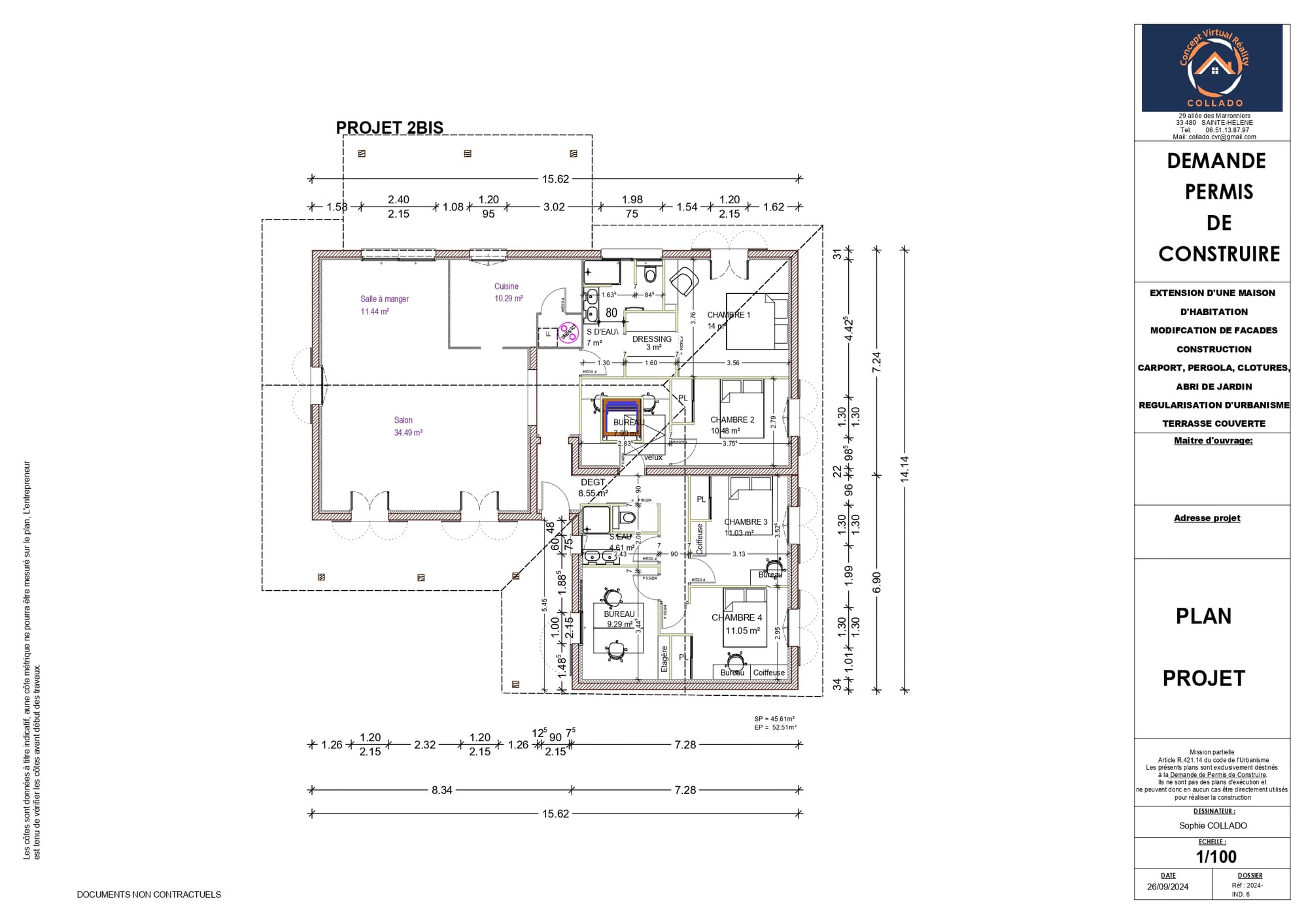
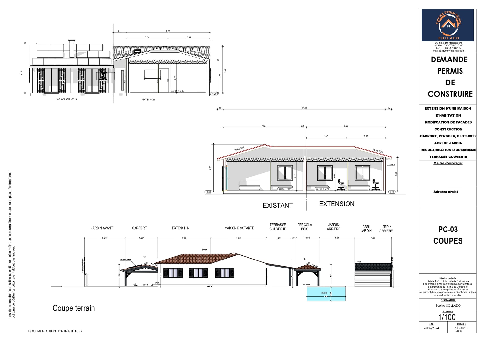
Extension et Rénovation d'une maison d'Habitation - LACANAU

Permis de construire Extension maison d'habitaiton Construction d'un carport Construction d'une Pergola Construction d'un abri de jardin Mise a jour urbanisme Construction d'une terrasse couverte Chiffrage projet tout corps d'Etat

Extension et Rénovation d'une maison d'Habitation - LACANAU
Extension et Rénovation d'une maison d'Habitation - LACANAU
Extension et Rénovation d'une maison d'Habitation - LACANAU
Extension et Rénovation d'une maison d'Habitation - LACANAU
Extension et Rénovation d'une maison d'Habitation - LACANAU
Extension et Rénovation d'une maison d'Habitation - LACANAU
Extension et Rénovation d'une maison d'Habitation - LACANAU
Extension et Rénovation d'une maison d'Habitation - LACANAU
Extension et Rénovation d'une maison d'Habitation - LACANAU
Extension et Rénovation d'une maison d'Habitation - LACANAU
Extension et Rénovation d'une maison d'Habitation - LACANAU
Extension et Rénovation d'une maison d'Habitation - LACANAU

Mise en oeuvre

Commencement des travaux le 6/02/2025

Mise en oeuvre
Mise en oeuvre
Mise en oeuvre
Mise en oeuvre
Mise en oeuvre
Mise en oeuvre
Mise en oeuvre
Mise en oeuvre
Mise en oeuvre
Mise en oeuvre
Mise en oeuvre
Mise en oeuvre
Mise en oeuvre
Mise en oeuvre
Mise en oeuvre
Mise en oeuvre
Mise en oeuvre
Mise en oeuvre
Mise en oeuvre